简约一层平房自建房设计图,这几套户型实实在在,选一套建没压力
简约一层平房自建房设计图,这几套户型实实在在,选一套建没压力
在城里很难实现住上别墅梦,但是我们可以在农村自己建造一栋,找个漂亮的户型,花点钱,找个好施工师傅,就可以建造并且住上漂亮的农村别墅。说的大家都心动了,看看这三款简约一层平房自建房设计图,户型十分大气美观,赶紧选一套喜欢的建造吧。
款式一:农村一层平房设计图,中式三合院设计,带堂屋设计
图纸介绍:这款一层平房占地173平米左右,仿古中式三合院设计,带堂屋设计,外观白墙灰瓦、木制门窗的清雅与内敛,展现出了上下千年的文化传承,更是一种审美的?回归。浓浓的山水写意之美被建筑艺术包裹其中,淡雅的一砖一瓦间,带给人们无限的遐想。
占地面积:17.4m*15.5m,173平方米左右;
建筑层高:一层;
建筑高度:6.271米(含屋顶);
设计功能:
一层户型:堂屋、厨房、餐厅、卧室x6、卫生间x2、杂物间;


一层平房设计图
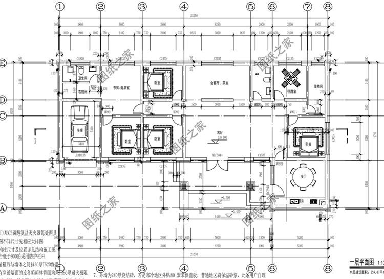
款式二:农村一层自建别墅设计图,占地260平米,大户型设计
图纸介绍:这款一层平房占地260平米左右,大户型设计,多卧室设计,和二层没有大的区别,所有的活动空间都在一层,还省去了上下楼梯的麻烦。
占地面积:25.2m*13.8m,260平方米左右;
建筑层高:一层;
建筑高度:8.9米(含屋顶);
设计功能:客厅、餐厅、厨房、会客厅、卧室×4、书房、衣帽间、卫生间、棋牌室、储物间、卫生间、车库;




一层平房设计图
款式三:农村一层别墅设计图,占地198平米,带堂屋设计
图纸介绍:这款一层别墅占地198平米,带堂屋设计,欧式风格,屋顶蓝色斜坡更显别致,老虎窗为点睛之笔。八角窗的设计,让整个建筑非常时尚又舒服。入户是堂屋设计,可摆放神位,非常适合农村生活习惯。客厅和餐厅通透明亮,通风采光极佳。4室二厅二卫的格局,基本满足农村三代同堂居住需求。
占地面积:18.76m*11.66m,198.41平方米左右;
建筑层高:一层;
建筑高度:6.34米(含屋顶);
设计功能:
一层户型:堂屋、客厅、娱乐区、厨房、餐厅、卧室(带衣帽间、卫生间)、卧室x3、卫生间x2;


一层平房设计图
不知道大家喜欢哪一款呢?欢迎下方评论留言。本文由图纸之家官网原创,欢迎关注,带你一起长知识!






